Eladó családi ház Nyíregyháza, Kertváros, 140 000 000 Ft

Leírás

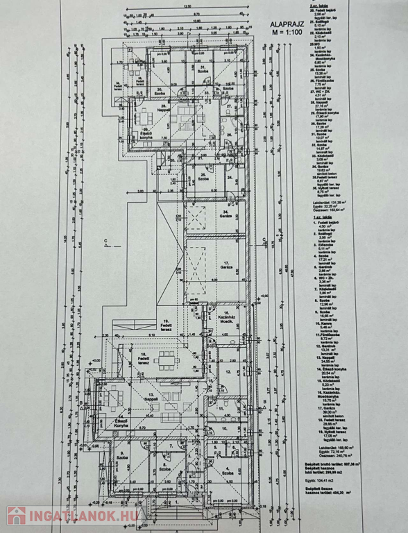
Nyíregyháza, Ságvári kertváros fiatal építésű aszfaltozott utcájában eladó egy 170 m2-s+40 m2-s iker családi ház garázzsal, három különnyíló szobás, nappali+étkező+amerikai konyha egy térben, wc+zuhany, fürdőszoba+wc, 2 gardrob, kamra, kazánház+mosókonyha, egyedi gáz és padló fűtésű (hőszivattyú kérhető), 3 rétegű üveg műanyag nyílászárók a belső ajtó a burkolat és a szaniterek költség kereten belül választhatók. Az ingatlan 30-s porotherm téglából épül, külsőleg 15 cm-s nikecel szigetelés, fafödémes, mennyezet fémvázra erősített gipszkarton rajta páraáteresztő fólia továbbá 20 cm-s üveggyapot szigetelés a tető beton cseréppel fedett alatta hővédő fólia, belső falak kartonozva de igény szerint gépi vakolás kérhető. Az egymás mögé épülő iker házak egyenként 450 m2-s telek területtel rendelkeznek, nappaliból kilépve 28 m2-s fedett burkolt terasz tárul elénk a házak csak a garázsnál érintkeznek, tartozik hozzá 1 db. 3,5 kw-s klíma, riasztó+kamera+kaputelefon vezeték előkészítve, automata garázskapu, térkövezett garázs felhajtó és járda. Költözni szerződéstől számítva 12 hónap!

Családi ház részletei

Ár: 140 000 000 Ft
Méret: 210 négyzetméter
Azonosító: 11545120
Irodai azonosító: 7986
Városrész: Kertváros
Telek: 450 négyzetméter
Ingatlan állapota: Épülő
Jelleg: ikerház
Építőanyag: Tégla
Fűtés jellege: Cirkó
Fűtés módja: Gáz
Komfort fokozat: Összkomfort
Kor: Új építésű
Elhelyezkedés: Udvari
Szintek száma: Földszintes
Bútorozott: Nem bútorozott
Egész szobák: 3
Nappalik: 1

Egyéb jellemzők

  • Beépíthető tetőtér
  • Csatorna
  • Garázs
  • Kábel TV
  • Melléképület
  • Padlás
  • Parketta
  • Pince
  • Terasz