Eladó családi ház Nyírpazony, Kabalás, 84 000 000 Ft

Leírás

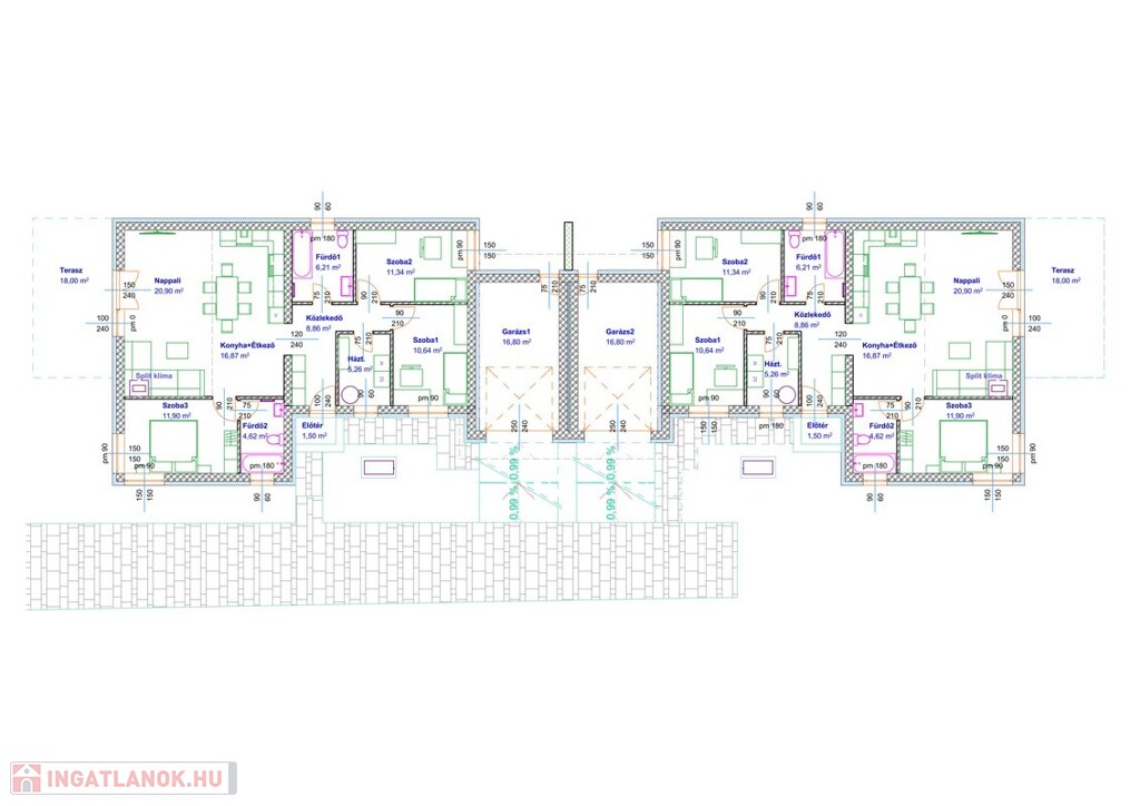
Nyírpazony-Kabaláson 2026-ba minőségi anyagokból épülő iker családi ház már foglalható. Az ingatlan alapozása monolit vasbeton sávalap, teherhordó falak 30 cm-s kerámia falazóblokk, válaszfalak 10 cm-s pórusbeton, tető szerkezet és a födém szeglemezes fa, félnyereg tetőszerkezet aminek az alsó öve egyben a zárófödém is. Külső nyílászárók 3 rétegű üvegezésű műanyag mely kívülről antracit belülről fehér színű tartozik hozzá a tokkal hasonló színű redőny és mobil szúnyogháló. Belső falak gépi vakolással végezve, glettelve, simítva. Szigetelés padlóban 12 cm-s, födémen 30 cm-s, homlokzat 15 cm-s, lábazat 15 cm-s, vízszigetelés 1 réteg bitumenes lemezszigetelés. Fűtése hőszivattyú mely padlóra vezérelt, 1 db. Split klíma 3,5 kw. meleg víz 200 L-s indirekt tartályról. A ház hasznos fűtött alapterülete 96,6 m2-s, 3 hálószoba, nappali+amerikai konyha, háztartási helység,  2 fürdőszoba+wc, továbbá tartozik hozzá 18 m2-s nyitott, burkolt terasz és 17 m2-s garázs melynek automata kapu és garázskapu bejárata van. Az árban hozzá értendő a szép kerítés és térkövezett járda és garázsfelhajtó. Az ingatlan garantáltan megbízható kivitelező által épül. Amennyiben felkeltettem az érdeklődését kérem mihamarabb hívjon!

Családi ház részletei

Ár: 84 000 000 Ft
Méret: 97 négyzetméter
Azonosító: 11593938
Irodai azonosító: 8464
Városrész: Kabalás
Telek: 700 négyzetméter
Ingatlan állapota: Épülő
Jelleg: ikerház
Építőanyag: Tégla
Fűtés jellege: Hőszivattyú
Fűtés módja: Villany
Komfort fokozat: Összkomfort
Kor: Új építésű
Elhelyezkedés: Udvari
Szintek száma: Földszintes
Bútorozott: Nem bútorozott
Egész szobák: 3
Nappalik: 1

Egyéb jellemzők

  • Beépíthető tetőtér
  • Csatorna
  • Garázs
  • Kábel TV
  • Melléképület
  • Padlás
  • Parketta
  • Pince
  • Terasz